Villa singola in vendita

Garda, Corso Italia
€ 1.850.000
Prezzo aggiornato
5 locali 5 locali
250 Mq 250 Mq
2 bagni 2 bagni

Villa singola in vendita

Garda, Corso Italia

Descrizione annuncio

Lago di GARDA

Una dimora unica sul lago di Garda! Proponiamo in vendita un rustico indipendente con biolago privato immerso nel terreno di 64.000 mq.

MLa cosa che subito colpisce è la presenza del biolago balneabile privato, al posto della “banale” piscina privata, si è preferito una soluzione perfettamente integrata nella natura, ricca di ninfee e flora che purificano l’acqua arricchita da un ponte ed un pontile in legno ideale per prendere il sole o per aperitivi e feste con gli amici.

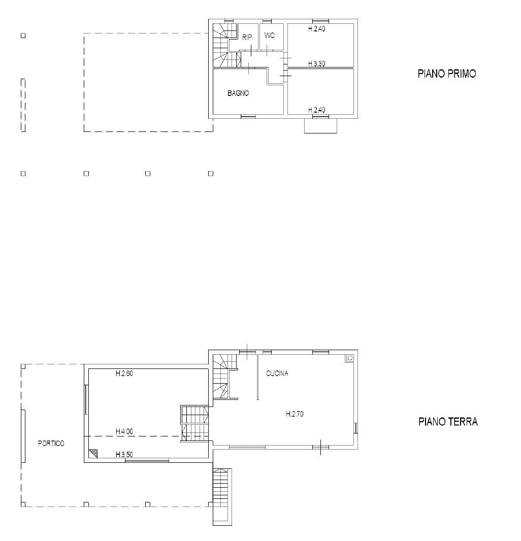
L’abitazione è il risultato di una ristrutturazione del 1998 con cui si è cercato di recuperare il sapore dell’antico casale di campagna indipendente. Ad accoglierci c’è subito il grande porticato di oltre 70 mq che è lo spazio ideale per vivere e mangiare all’aperto già da inizio primavera; i pilastri in pietra, il sasso a vista e le travi in legno donano uno charme unico al contesto, le grandi vetrate donano luminosità al salone a doppia altezza di 50 mq. Qualche scalino che movimenta l’architettura del fabbricato conduce alla cucina abitabile ed alla zona pranzo di altri 50 mq ca.

Una scala in pietra conduce al piano superiore dove sono state realizzate due camere da letto, un grande bagno padronale con vasca idromassaggio e doccia, il bagno di servizio ed un ripostiglio.

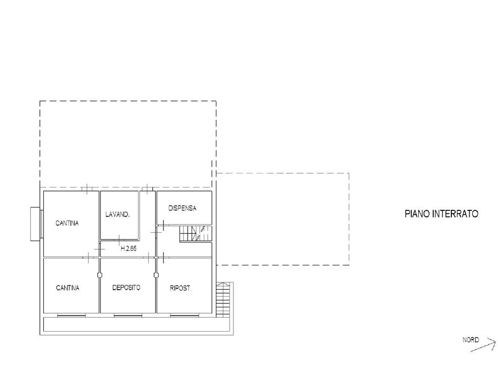
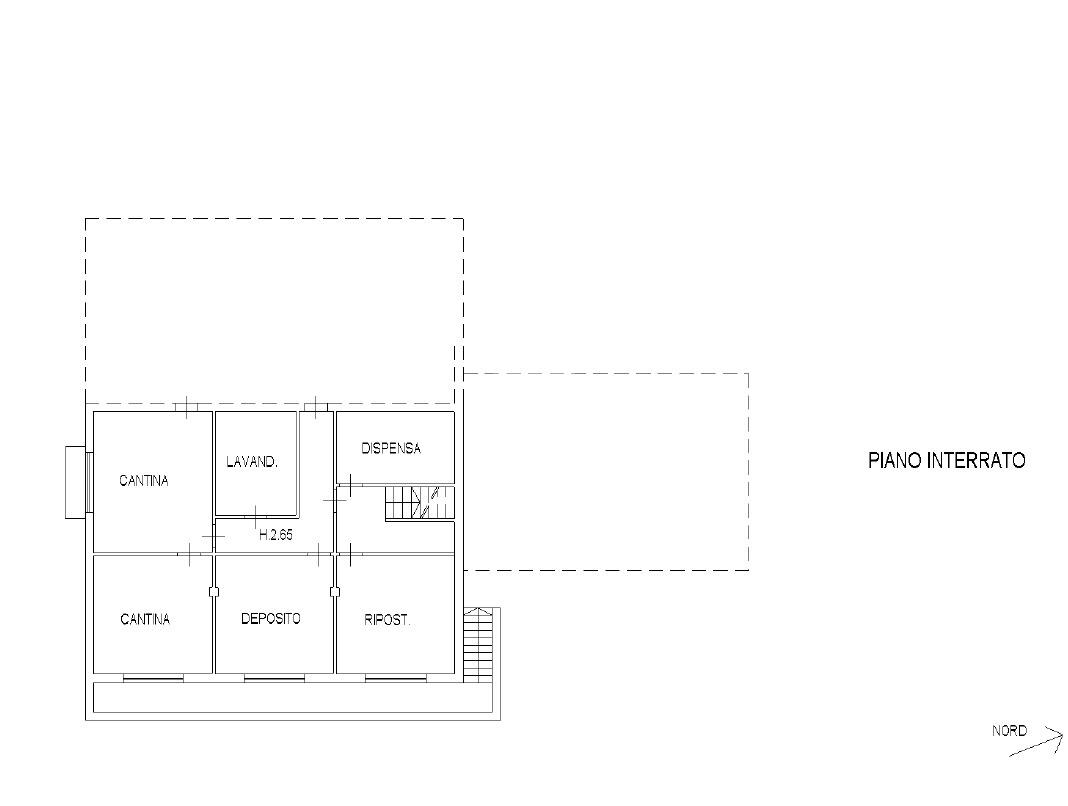
Nell’interrato, dotato anche di accesso indipendente dall’esterno, si trovano una grande e luminosa taverna, tre stanze che possono essere ideali per gli ospiti cui garantire privacy, un bagno/lavanderia, la dispensa ed un ripostiglio; direttamente collegata a questa zona troviamo il grande garage di quasi 80 mq, spazio ideale per ricoverare le vostre auto sportive, youngtimer e vetture d’epoca. Per chi non si accontenta c’è a disposizione un’altra autorimessa di quasi 120 mq con accesso indipendente direttamente dal livello strada.

Forse la parte più bella da vivere è il giardino esterno: nell’ampia area a prato attorno alla casa troviamo glicini, aceri giapponesi, fiori, alberi ed essenze di ogni genere. Il biolago ospita le ninfee ed un canneto; la zona orto consentirebbe il sostentamento autonomo, dalla collina boscosa si può ammirare il lago di Garda.

Questa dimora è una soluzione davvero unica e introvabile così vicino al lago di Garda. E’ dedicata agli amanti della natura, della tranquillità e della privacy. In pochi minuti d’auto si può passare dal “paradiso terrestre” alla caotica vita del lungolago o della spiaggia.

Mostra tutto

Nelle vicinanze

Trasporto pubblico Trasporto pubblico
Flixbus
Flixbus
170 m
Garda
Garda
180 m
Garda
610 m
Ricariche auto elettriche Ricariche auto elettriche
Be Charge Hotel Villa Madrina
760 m
Madrigale the Panoramic Resort
1,9 Km
Costermano Repubblica | EnelX
2,9 Km
Scuole Scuole
Scuole
560 m
Scuola Secondaria Primo Grado
2,8 Km
Scuola Primaria
2,8 Km
Farmacia Farmacia
Farmacia del Garda
210 m
Farmacia Costermano
2,7 Km
Ospedali Ospedali
White Cross ambulance
160 m
Ospedali
1,0 Km
Croce Rossa Italiana
2,4 Km
Croce Rossa Italiana Comitato di Bardolino Baldo Garda
2,4 Km
Medical Clinic
2,9 Km
Supermercati Supermercati
Fresco mio
130 m
DPiu' Discount
510 m
Supermercati
650 m
GardaGourmet
1,1 Km
DeBeni
2,8 Km
Negozi Negozi
I Dolci della Regina
110 m
Brugi
260 m
Negozi
330 m
Panificio Bullio
440 m
P55
450 m
Bar Bar
Civico 7
30 m
Il Boccaccio Bar Osteria
40 m
Poker Bar
170 m
Bar Officina Nautica
260 m
Bar La Rosa
290 m
Ristoranti Ristoranti
Ristoranti
40 m
Caffè Amaro
50 m
Ristorante Ai Cigni
70 m
Al Vicolo
130 m
Al Regio Patio
130 m
Mostra tutto

Caratteristiche

Rif.:
61120285
Piano:
Basso di 2
Totale piani:
2
Box:
8
Posti auto:
8
Balconi:
1
Mostra tutto
Prezzo Prezzo
€ 1.850.000
Rata mutuo Rata mutuo
€ 8.551 / mese
Spese annue Spese annue
€ 0
Proponi il tuo prezzoProponi il tuo prezzo

Classe Energetica

Questo immobile è esente da classe energetica
Anno di costruzione:
2001
Riscaldamento:
Autonomo
Tipo impianto:
A pavimento
Tipo alimentazione:
Pannelli

Prezzo ridotto di €1 (16%%)

Ti interessa visionare l'immobile?

Fissa un appuntamento  Fissa un appuntamento

Richiedi informazioni

* Questi campi sono obbligatori

Calcola il tuo mutuo

Semplice e senza impegno
Anticipo

( % )
Mutuo

( % )

pochi semplici passi

inserisci i tuoi dati
Questionario completato
Grazie per aver richiesto un appuntamento senza impegno con un nostro Consulente del Credito e Assicurativo.

Hai inserito correttamente tutti i dati necessari e a breve riceverai una e-mail con un link da convalidare per inviare i tuoi dati.
Affiliato
Studio Gardesano Srl
Corso Italia, 18 37016 Garda (VR)

Il nostro staff


  • Elena Cebanova
    Coordinatrice

  • Niccolas Gabriel De Jesus Gomes
    Collaboratore

  • Mattia Dall'Agnola
    Affiliato
Corso Italia, 18 37016 Garda (VR)
Zona: Garda - Torri del Benaco - San Zeno di Montagna
Mostra su mappa
Affiliato
Studio Gardesano Srl
Corso Italia, 18 37016 Garda (VR)

2025 Tecnocasa Franchising S.p.A. - P. IVA 08365160152 - Via Monte Bianco 60/A 20089 Rozzano (MI). Ogni agenzia ha un proprio titolare ed è autonoma. Privacy policy | Policy utilizzo | Cookie policy